Tallens Stuga

1 | 11

Tallens Stuga

2 | 11

Tallens Stuga

3 | 11

Tallens Stuga

4 | 11

Tallens Stuga

5 | 11

Tallens Stuga

6 | 11

Tallens Stuga

7 | 11

Tallens Stuga

8 | 11

Tallens Stuga

9 | 11

Tallens Stuga

10 | 11

Tallens Stuga

11 | 11

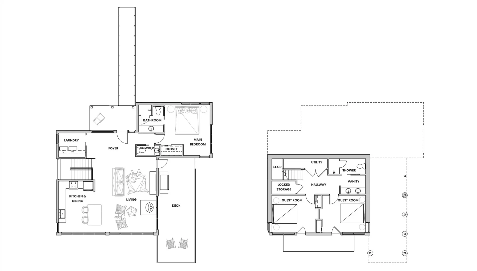
New cabin overlooking Lake Superior with direct access to the lake

Tallens Stuga, or "Cabin of the Pine Trees" in Swedish, is a modern rental cabin on Lake Superior. This new cabin's structure is pushed up to the set-back from the lake on a steeply sloped site to take full advantage of the proximity to the water. Design features include a simple sloped roof with a side deck that extends past the front of the cabin to offer a 270-degree view of the lake. As many existing trees as possible have been retained by positioning the cabin between them. The client also plans to add a sauna in the future.

Location

Lutsen, MN

Project Type

Housing

Size

1,888 SF

Role

Architect

Status

Complete